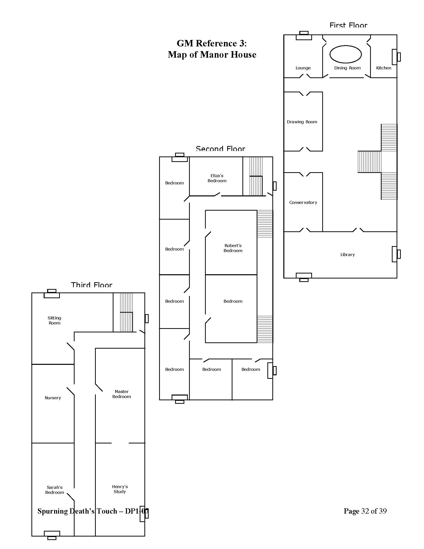
GM Reference 3: Map of Manor House